
中拓自動高速焊管機生產線

設備介紹:
全自動焊管機可全自動批量生產鋼管、碳鋼管。 無論是圓管、方管還是矩形管,我們都能為您制造。 機器工作速度可達90m/min。

我們的焊管制造機械采用先進的電焊連接技術,提供雙焊弧、更高的速度、更高的熔敷率、更高的機械性能和質量。 HG50、HG 76高頻焊管機廣泛應用于生產熱交換器、冰箱、汽車框架、自行車、健身器材、家具、汽油傳動、建筑行業等管材。 或焊管軋機由成套鋼管機、旋轉絞盤、開卷機、矯直機、剪切機、蓄能器、管磨機段、飛鋸和包裝裝置組成。 現在我們有四種類型的機器,按壁厚和直徑劃分。
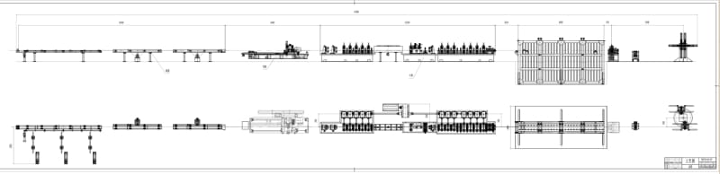
中拓自動高速焊管機生產線流程圖:

焊管制造機械特點:
1.連續生產,粗成型段無需更換輥筒。
2.焊縫工藝質量可靠。
3.焊管廠生產的管材涵蓋了目前建筑使用的大部分不銹鋼管建造。
4.高頻焊管機具有生產成本低、產能高等突出優勢。

中拓自動高速焊管機生產線成品管:


| 付款方式: | 30%定金,剩余70%測試后發貨前付清。 |
| 售后保障: | 提供終身在線技術服務支持,零部件可更換。 |
| 起訂量: | 1臺/套 |
| 發貨期(天): | 常規45天,具體可以商定。 |
| 保修期: | 機器1年保修期 |
| 支付保障: | 可阿里巴巴下訂單支付,享受第三方交易保障。 準時發貨保證 √ 退款政策 √ (我們的阿里巴巴店鋪網址:https://zhongtuomachine.en.alibaba.com/) |




微信17743636788